Používáme cookies k optimalizaci našich webových stránek a našich služeb. Další informace o cookies najdete zde.

Nastavení


Semice, prodej rodinného domu 3+kk, na pozemku 298m2.

Semice, prodej rodinného domu 3+kk, na pozemku 298m2.

Pokud hledáte dům, který si přizpůsobíte zcela podle sebe, může být tato nabídka právě pro vás.

 

 

                   PRODÁNO

Popis nemovitosti

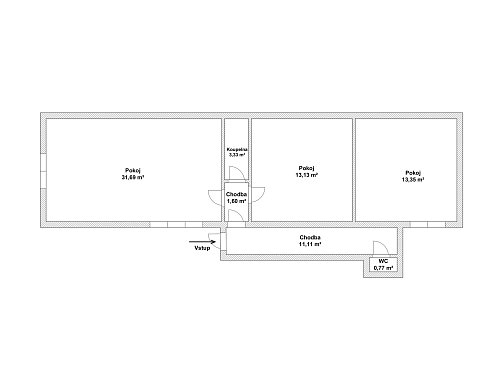
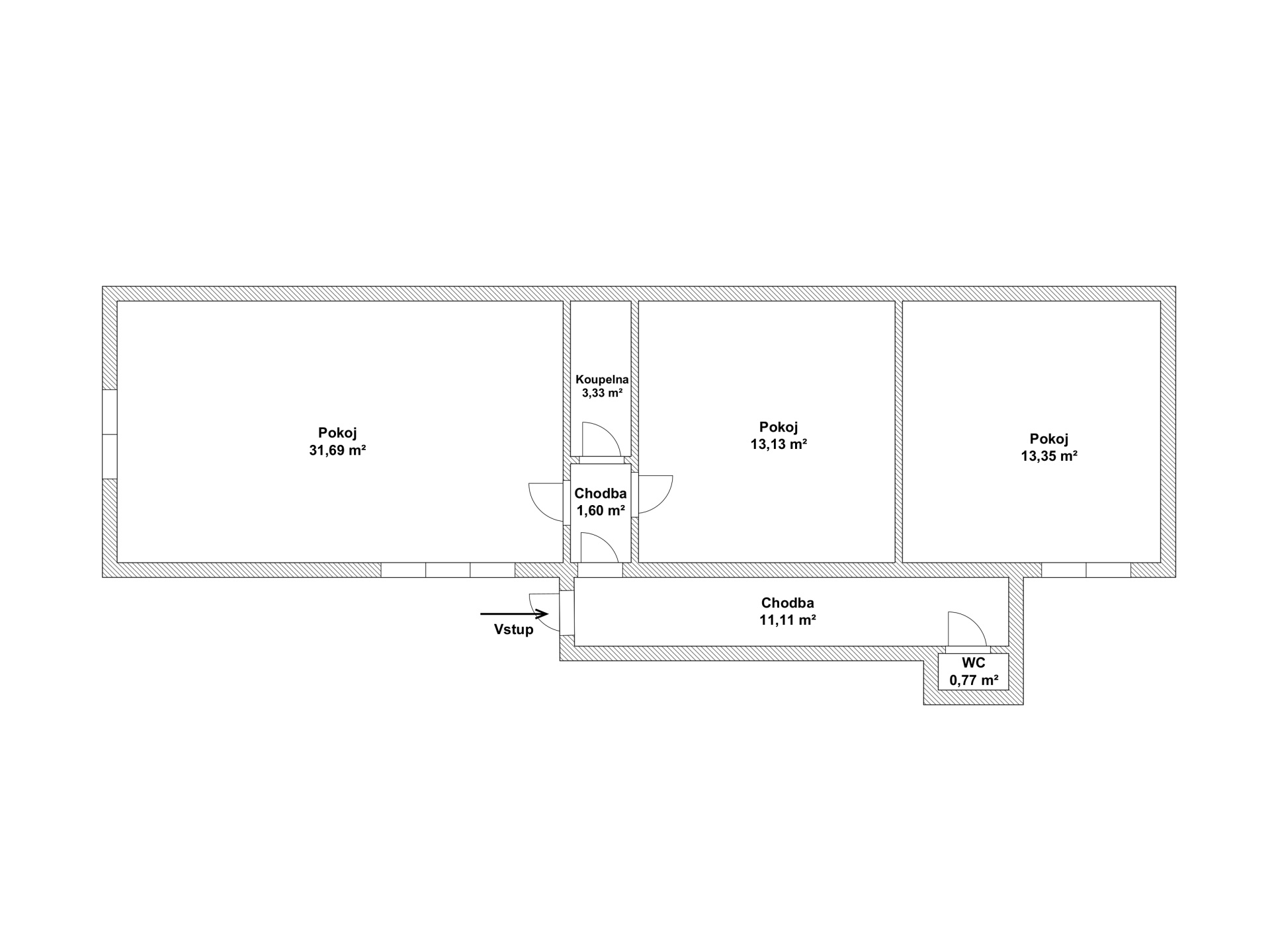
Nabízíme k prodeji rodinný dům o dispozici 3+kk s obytnou plochou 73 m², který se nachází v klidné obci Semice v okrese Nymburk. Součástí domu je pozemek o rozloze 298 m².

Dům je určen ke kompletní rekonstrukci, což dává novému majiteli skvělou možnost vytvořit si bydlení přesně podle svých představ a potřeb.

Obec Semice se vyznačuje příjemným prostředím s dobrou dostupností do Nymburka, Poděbrad i Prahy. V místě je základní občanská vybavenost, mateřská škola, základní škola, obchod, pošta a okolí nabízí klidné bydlení s možností odpočinku i sportovního vyžití.

Pokud hledáte dům, který si přizpůsobíte zcela podle sebe, může být tato nabídka právě pro vás.
Pro více informací a domluvení prohlídky volejte makléřce

Ostatní

Budova - smíšená.
Stav objektu - před rekonstrukcí. 
Typo domu - přízemní.
Užitná plocha - 73m2.
Plocha pozemku - 298m2.
Voda - místní zdroj.
Zdroj tepla - kotel na tuhá paliva.
Zdroj teplé vody - bojler. 
Odpad - veřejná kanalizace.

PENB nedodán.
Cena - 2.950.000,- Kč

Milena Barešová

Jmenuji se Milena Barešová a v oblasti realit působím již 14 let. Posledních 10 let jsem pracovala jako asistentka realitní kanceláře, realitní makléřka a asistentka prodeje developerských projektů.

Práce realitní makléřky mě naplňuje. Už jako dítě jsem v podzimních večerech s fascinací nahlížela do osvětlených oken domů a představovala si, jaké je cítit jejich teplo a atmosféru domova. Dnes jako makléřka pomáhám lidem toto teplo domova najít. A právě to mě na mé práci těší nejvíc. 

Ve volném čase se věnuji tanci, józe a čtení. Jsem také celoživotní studentkou angličtiny a hry na piano a aktivně se zapojuji do činnosti neziskové organizace LKS.

Mezi mé hlavní hodnoty patří rodina, zodpovědnost, respekt a upřímnost. Věřím, že tyto principy jsou základem silných vztahů — osobních i profesních — a snažím se jednat vždy s ohledem na dlouhodobé dopady svých rozhodnutí.

 


Milena Barešová

Kontaktní formulář

Stáhnout PDF